海灣消防公司-建筑通風和空氣調節
9.3.1 通風和空氣調節系統,橫向宜按防火分區設置,豎向不宜超過5層。當管道設置防止回流設施或防火閥時,管道布置可不受此限制。豎向風管應設置在管井內。
9.3.2 廠房內有爆炸危險場所的排風管道,嚴禁穿過防火墻和有爆炸危險的房間隔墻。
9.3.3 甲、乙、丙類廠房內的送、排風管道宜分層設置。當水平或豎向送風管在進入生產車間處設置防火閥時,各層的水平或豎向送風管可合用一個送風系統。
9.3.4 空氣中含有易燃、易爆危險物質的房間,其送、排風系統應采用防爆型的通風設備。當送風機布置在單獨分隔的通風機房內且送風干管上設置防止回流設施時,可采用普通型的通風設備。
9.3.5 含有燃燒和爆炸危險粉塵的空氣,在進入排風機前應采用不產生火花的除塵器進行處理。對于遇水可能形成爆炸的粉塵,嚴禁采用濕式除塵器。
9.3.6 處理有爆炸危險粉塵的除塵器、排風機的設置應與其他普通型的風機、除塵器分開設置,并宜按單一粉塵分組布置。
9.3.7 凈化有爆炸危險粉塵的干式除塵器和過濾器宜布置在廠房外的獨立建筑內,建筑外墻與所屬廠房的防火間距不應小于10m。
具備連續清灰功能,或具有定期清灰功能且風量不大于15000m³/h、集塵斗的儲塵量小于60kg的干式除塵器和過濾器,可布置在廠房內的單獨房間內,但應采用耐火極限不低于3.00h的防火隔墻和1.50h的樓板與其他部位分隔。
9.3.8 凈化或輸送有爆炸危險粉塵和碎屑的除塵器、過濾器或管道,均應設置泄壓裝置。
凈化有爆炸危險粉塵的干式除塵器和過濾器應布置在系統的負壓段上。
9.3.9 排除有燃燒或爆炸危險氣體、蒸氣和粉塵的排風系統,應符合下列規定:
1 排風系統應設置導除靜電的接地裝置;
2 排風設備不應布置在地下或半地下建筑(室)內;
3 排風管應采用金屬管道,并應直接通向室外安全地點,不應暗設。
9.3.10 排除和輸送溫度超過80℃的空氣或其他氣體以及易燃碎屑的管道,與可燃或難燃物體之間的間隙不應小于150mm,或采用厚度不小于50mm的不燃材料隔熱;當管道上下布置時,表面溫度較高者應布置在上面。
9.3.11 通風、空氣調節系統的風管在下列部位應設置公稱動作溫度為70℃的防火閥:
1 穿越防火分區處;
2 穿越通風、空氣調節機房的房間隔墻和樓板處;
3 穿越重要或火災危險性大的場所的房間隔墻和樓板處;
4 穿越防火分隔處的變形縫兩側;
5 豎向風管與每層水平風管交接處的水平管段上。
注:當建筑內每個防火分區的通風、空氣調節系統均獨立設置時,水平風管與豎向總管的交接處可不設置防火閥。
9.3.12 公共建筑的浴室、衛生間和廚房的豎向排風管,應采取防止回流措施并宜在支管上設置公稱動作溫度為70℃的防火閥。
公共建筑內廚房的排油煙管道宜按防火分區設置,且在與豎向排風管連接的支管處應設置公稱動作溫度為150℃的防火閥。
9.3.13 防火閥的設置應符合下列規定:
1 防火閥宜靠近防火分隔處設置;
2 防火閥暗裝時,應在安裝部位設置方便維護的檢修口;
3 在防火閥兩側各2.0m范圍內的風管及其絕熱材料應采用不燃材料;
4 防火閥應符合現行國家標準《建筑通風和排煙系統用防火閥門》GB 15930的規定。
9.3.14 除下列情況外,通風、空氣調節系統的風管應采用不燃材料:
1 接觸腐蝕性介質的風管和柔性接頭可采用難燃材料;
2 體育館、展覽館、候機(車、船)建筑(廳)等大空間建筑,單、多層辦公建筑和丙、丁、戊類廠房內通風、空氣調節系統的風管,當不跨越防火分區且在穿越房間隔墻處設置防火閥時,可采用難燃材料。
9.3.15 設備和風管的絕熱材料、用于加濕器的加濕材料、消聲材料及其粘結劑,宜采用不燃材料,確有困難時,可采用難燃材料。
風管內設置電加熱器時,電加熱器的開關應與風機的啟停聯鎖控制。電加熱器前后各0.8m范圍內的風管和穿過有高溫、火源等容易起火房間的風管,均應采用不燃材料。
9.3.16 燃油或燃氣鍋爐房應設置自然通風或機械通風設施。燃氣鍋爐房應選用防爆型的事故排風機。當采取機械通風時,機械通風設施應設置導除靜電的接地裝置,通風量應符合下列規定:
1 燃油鍋爐房的正常通風量應按換氣次數不少于3次/h確定,事故排風量應按換氣次數不少于6次/h確定;
2 燃氣鍋爐房的正常通風量應按換氣次數不少于6次/h確定,事故排風量應按換氣次數不少于12次/h確定。
9.3 通風和空氣調節
9.3.1 由于火災中的熱煙氣擴散速度較快,在布置通風和空氣調節系統的管道時,要采取措施阻止火災的橫向蔓延,防止和控制火災的豎向蔓延,使建筑的防火體系完整。本條結合工程設計實際和建筑布置需要,規定通風和空氣調節系統的布置,橫向盡量按每個防火分區設置,豎向一般不大于5層。通風管道在穿越防火分隔處設置防火閥,可以有效地控制火災蔓延,在此條件下,通風管道橫向或豎向均可以不分區或按樓層分段布置。在住宅建筑中的廚房、廁所的垂直排風管道上,多見用防止回流設施防止火勢蔓延,在公共建筑的衛生間和多個排風系統的排風機房里需同時設防火閥和防止回流設施。
本規范要求建筑內管道井的井壁應采用耐火極限不低于1.00h的防火隔墻,故穿過樓層的豎向風管也要求設在管井內或者采用耐火極限不低于1.00h的耐火管道。
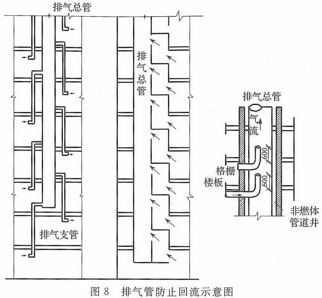
住宅建筑中的排風管道內采取的防止回流方法,可參見圖8所示的做法。具體做法有:
(1) 增加各層垂直排風支管的高度,使各層排風支管穿越2層樓板;
(2) 把排風豎管分成大小兩個管道,豎向干管直通屋面,排風支管分層與豎向干管連通;
(3) 將排風支管順氣流方向插入豎向風道,且支管到支管出口的高度不小于600mm;
(4) 在支管上安裝止回閥。
9.3.2 本條為強制性條文。對于有爆炸危險的車間或廠房,容易通過通風管道蔓延到建筑的其它部分,本條對排風管道穿越防火墻和有爆炸危險的部位作了嚴格限制,以保證防火墻等防火分隔物的完整性,并防止通過排風管道將有爆炸危險場所的火災或爆炸波引入其他場所。
9.3.3 在火災危險性較大的甲、乙、丙類廠房內,送排風管要盡量考慮分層設置。當進入生產車間或廠房的水平或垂直風管設置了防火閥時,可以阻止火災從著火層向相鄰層蔓延,因而各層的水平或垂直送風管可以共用一個系統。
9.3.4 在風機停機時,一般會出現空氣從風管倒流到風機的現象。當空氣中含有易燃或易爆炸物質且風機未做防爆處理時,這些物質會隨之被帶到風機內,并因風機產生的火花而引起爆炸,故風機要采取防爆措施。一般,可采用有色金屬制造的風機葉片和防爆的電動機。
若通風機設置在單獨隔開的通風機房內,在送風干管內設置止回閥,即順氣流方向開啟的單向閥,能防止危險物質倒流到風機內,且通風機房發生火災后也不致蔓延至其它房間,因此可采用普通的通風設備。
9.3.5 本條為強制性條文。含有燃燒和爆炸危險粉塵的空氣不能進入排風機或在進入排風機前對其進行凈化。采用不產生火花的除塵器,主要為防止除塵器工作過程中產生火花引起粉塵、碎屑燃燒或爆炸。
空氣中可燃粉塵的含量控制在25%以下,通常是可防止可燃粉塵形成局部高濃度、滿足安全要求的數值。美國消防協會(NFPA)《防火手冊》指出:可燃蒸氣和氣體的警告響應濃度為其爆炸下限的20%;當濃度達到爆炸下限的50%時,要停止操作并進行惰化。國內大部分文獻和標準也均采用物質爆炸下限的25%為警告值。
9.3.6 根據火災爆炸案例,有爆炸危險粉塵的排風機、除塵器采取分區、分組布置是必要的。一個系統對應一種粉塵,便于粉塵回收;不同性質的粉塵在一個系統中,有引起化學反應的可能。如硫磺與過氧化鉛、氯酸鹽混合物能發生爆炸,碳黑混入氧化劑自燃點會降低到100℃。因此,本條強調在布置除塵器和排風機時,要盡量按單一粉塵分組布置。
9.3.7 從國內一些用于凈化有爆炸危險粉塵的干式除塵器和過濾器發生爆炸的危害情況看,這些設備如果條件允許布置在廠房之外的獨立建筑內,并與所屬廠房保持一定的防火間距,對于防止發生爆炸和減少爆炸危害十分有利。
9.3.8 本條為強制性條文。試驗和爆炸案例分析均表明,用于排除有爆炸危險的粉塵、碎屑的除塵器、過濾器和管道,如果設置泄壓裝置,對于減輕爆炸的沖擊波破壞較為有效。泄壓面積大小則需根據有爆炸危險的粉塵、纖維的危險程度,經計算確定。
要求除塵器和過濾器布置在負壓段上,主要為縮短含塵管道的長度,減少管道內的積塵,避免因干式除塵器布置在系統的正壓段上漏風而引起火災。
9.3.9 本條為強制性條文。含可燃氣體、蒸氣和粉塵場所的排風系統,通過設置導除靜電接地的裝置,可以減少因靜電引發爆炸的可能性。地下、半地下場所易積聚有爆炸危險的蒸氣和粉塵等物質,因此對上述場所進行排風的設備不能設置在地下、半地下。
本條第3款規定主要為便于檢查維修和排除危險,消除安全隱患。為安全考慮,排氣口要盡量遠離明火和人員通過或停留的地方。
9.3.10 溫度超過80℃的氣體管道與可燃或難燃物體長期接觸,易引起火災;容易起火的碎屑也可能在管道內發生火災,并易引燃鄰近的可燃、難燃物體。因此,要求與可燃、難燃物體之間保持一定間隙或應用導熱性差的不燃隔熱材料進行隔熱。
9.3.11 本條為強制性條文。通風和空氣調節系統的風管是建筑內部火災蔓延的途徑之一,要采取措施防止火勢穿過防火墻和不燃性防火分隔物等位置蔓延。通風、空氣調節系統的風管上應設防火閥的部位主要有:
1 防火分區等防火分隔處。主要防止火災在防火分區或不同防火單元之間蔓延。在某些情況下,必須穿過防火墻或防火隔墻時,需在穿越處設置防火閥,此防火閥一般依靠感煙火災探測器控制動作,用電訊號通過電磁鐵等裝置關閉,同時它還具有溫度熔斷器自動關閉以及手動關閉的功能。
2、3 風管穿越通風、空氣調節機房或其他防火隔墻和樓板處。主要防止機房的火災通過風管蔓延到建筑內的其他房間,或者防止建筑內的火災通過風管蔓延到機房。此外,為防止火災蔓延至重要的會議室、貴賓休息室、多功能廳等性質重要的房間或有貴重物品、設備的房間以及易燃物品實驗室或易燃物品庫房等火災危險性大的房間,規定風管穿越這些房間的隔墻和樓板處應設置防火閥。
4 在穿越變形縫的兩側風管上。在該部位兩側風管上各設一個防火閥,主要為使防火閥在一定時間里達到耐火完整性和耐火穩定性要求,有效地起到隔煙阻火作用,參見圖9。
5 豎向風管與每層水平風管交接處的水平管段上。主要為防止火勢豎向蔓延。
有關防火閥的分類,參見表18。
9.3.12 為防止火勢通過建筑內的浴室、衛生間、廚房的垂直排風管道(自然排風或機械排風)蔓延,要求這些部位的垂直排風管采取防回流措施并盡量在其支管上設置防火閥。
由于廚房中平時操作排出的廢氣溫度較高,若在垂直排風管上設置70℃時動作的防火閥,將會影響平時廚房操作中的排風。根據廚房操作需要和廚房常見火災發生時的溫度,本條規定公共建筑廚房的排油煙管道的支管與垂直排風管連接處要設150℃時動作的防火閥,同時,排油煙管道盡量按防火分區設置。
9.3.13 本條規定了防火閥的主要性能和具體設置要求。
(1) 為使防火閥能自行嚴密關閉,防火閥關閉的方向應與通風和空調的管道內氣流方向相一致。采用感溫元件控制的防火閥,其動作溫度高于通風系統在正常工作的最高溫度(45℃)時,宜取70℃。現行國家標準《建筑通風和排煙系統用防火閥門》GB 15930規定防火閥的公稱動作溫度應為70℃。
(2) 為使防火閥能及時關閉,控制防火閥關閉的易熔片或其它感溫元件應設在容易感溫的部位。設置防火閥的通風管要求具備一定強度,設置防火閥處要設置單獨的支吊架,以防止管段變形。在暗裝時,需在安裝部位設置方便檢修的檢修口,參見圖10。
(3) 為保證防火閥能在火災條件下發揮預期作用,穿過防火墻兩側各2.0m范圍內的風管絕熱材料需采用不燃材料且具備足夠的剛性和抗變形能力,穿越處的空隙要用不燃材料或防火封堵材料嚴密填實。
9.3.14 國內外均有不少因通風、空調系統風管因可燃而致火災蔓延,造成重大的人員和財產損失的案例,故本條規定通風、空調系統的風管應采用不燃材料制作。
本條規定參考了國外有關標準,考慮了我國有關防火分隔的具體要求及應用實例,如一些大空間民用或工業生產場所。設計要注意控制材料的燃燒性能及其發煙性能和熱解產物的毒性。
9.3.15 加濕器的加濕材料常為可燃材料,這給類似設備留下了一定火災隱患。因此,風管和設備的絕熱材料、用于加濕器的加濕材料、消聲材料及其粘結劑,應采用不燃材料。在采用不燃材料確有困難時,允許有條件地采用難燃材料。
為防止通風機已停而電加熱器繼續加熱引起過熱而著火,電加熱器的開關與風機的開關應進行聯鎖,風機停止運轉,電加熱器的電源亦應自動切斷。同時,電加熱器前后各800mm的風管采用不燃材料進行絕熱,穿過有火源及容易著火的房間的風管也應采用不燃絕熱材料。
目前,不燃絕熱材料、消聲材料有超細玻璃棉、玻璃纖維、巖棉、礦渣棉等。難燃材料有自熄性聚氨脂泡沫塑料、自熄性聚苯乙烯泡沫塑料等。
9.3.16 本條為強制性條文。本條所指鍋爐房包括燃油、燃氣的熱水、蒸汽鍋爐房和直燃型溴化鋰冷(熱)水機組的機房。
燃油、燃氣鍋爐房在使用過程中存在逸漏或揮發的可燃性氣體,要在這些房間內通過自然通風或機械通風方式保持良好的通風條件,使逸漏或揮發的可燃性氣體與空氣混合氣體的濃度不能達到其爆炸下限值的25%。
燃油鍋爐所用油的閃點溫度一般高于60℃,油泵房內的溫度一般不會高于60℃,不存在爆炸危險。機房的通風量可按泄漏量計算或按換氣次數計算,具體設計要求參見現行國家標準《鍋爐房設計規范》GB 50041-2008第15.3節有關燃油、燃氣鍋爐房的通風要求。智淼君安(江蘇)消防工程技術有限公司http://m.yemaihua.cn/
海灣消防公司主營:海灣消防報警系統銷售,消防設備安裝,海灣氣體滅火、海灣電氣火災、消防水噴淋系統施工安裝,售后維修,海灣消防網站:http://m.yemaihua.cn/;海灣消防服務熱線:4006-598-119本文網址:http://m.yemaihua.cn/jishuziliao/9439.html
關鍵詞:海灣消防公司-建筑通風和空氣調節
9.3.2 廠房內有爆炸危險場所的排風管道,嚴禁穿過防火墻和有爆炸危險的房間隔墻。
9.3.3 甲、乙、丙類廠房內的送、排風管道宜分層設置。當水平或豎向送風管在進入生產車間處設置防火閥時,各層的水平或豎向送風管可合用一個送風系統。
9.3.4 空氣中含有易燃、易爆危險物質的房間,其送、排風系統應采用防爆型的通風設備。當送風機布置在單獨分隔的通風機房內且送風干管上設置防止回流設施時,可采用普通型的通風設備。
9.3.5 含有燃燒和爆炸危險粉塵的空氣,在進入排風機前應采用不產生火花的除塵器進行處理。對于遇水可能形成爆炸的粉塵,嚴禁采用濕式除塵器。
9.3.6 處理有爆炸危險粉塵的除塵器、排風機的設置應與其他普通型的風機、除塵器分開設置,并宜按單一粉塵分組布置。
9.3.7 凈化有爆炸危險粉塵的干式除塵器和過濾器宜布置在廠房外的獨立建筑內,建筑外墻與所屬廠房的防火間距不應小于10m。
具備連續清灰功能,或具有定期清灰功能且風量不大于15000m³/h、集塵斗的儲塵量小于60kg的干式除塵器和過濾器,可布置在廠房內的單獨房間內,但應采用耐火極限不低于3.00h的防火隔墻和1.50h的樓板與其他部位分隔。
9.3.8 凈化或輸送有爆炸危險粉塵和碎屑的除塵器、過濾器或管道,均應設置泄壓裝置。
凈化有爆炸危險粉塵的干式除塵器和過濾器應布置在系統的負壓段上。
9.3.9 排除有燃燒或爆炸危險氣體、蒸氣和粉塵的排風系統,應符合下列規定:
1 排風系統應設置導除靜電的接地裝置;
2 排風設備不應布置在地下或半地下建筑(室)內;
3 排風管應采用金屬管道,并應直接通向室外安全地點,不應暗設。
9.3.10 排除和輸送溫度超過80℃的空氣或其他氣體以及易燃碎屑的管道,與可燃或難燃物體之間的間隙不應小于150mm,或采用厚度不小于50mm的不燃材料隔熱;當管道上下布置時,表面溫度較高者應布置在上面。
9.3.11 通風、空氣調節系統的風管在下列部位應設置公稱動作溫度為70℃的防火閥:
1 穿越防火分區處;
2 穿越通風、空氣調節機房的房間隔墻和樓板處;
3 穿越重要或火災危險性大的場所的房間隔墻和樓板處;
4 穿越防火分隔處的變形縫兩側;
5 豎向風管與每層水平風管交接處的水平管段上。
注:當建筑內每個防火分區的通風、空氣調節系統均獨立設置時,水平風管與豎向總管的交接處可不設置防火閥。
9.3.12 公共建筑的浴室、衛生間和廚房的豎向排風管,應采取防止回流措施并宜在支管上設置公稱動作溫度為70℃的防火閥。
公共建筑內廚房的排油煙管道宜按防火分區設置,且在與豎向排風管連接的支管處應設置公稱動作溫度為150℃的防火閥。
9.3.13 防火閥的設置應符合下列規定:
1 防火閥宜靠近防火分隔處設置;
2 防火閥暗裝時,應在安裝部位設置方便維護的檢修口;
3 在防火閥兩側各2.0m范圍內的風管及其絕熱材料應采用不燃材料;
4 防火閥應符合現行國家標準《建筑通風和排煙系統用防火閥門》GB 15930的規定。
9.3.14 除下列情況外,通風、空氣調節系統的風管應采用不燃材料:
1 接觸腐蝕性介質的風管和柔性接頭可采用難燃材料;
2 體育館、展覽館、候機(車、船)建筑(廳)等大空間建筑,單、多層辦公建筑和丙、丁、戊類廠房內通風、空氣調節系統的風管,當不跨越防火分區且在穿越房間隔墻處設置防火閥時,可采用難燃材料。
9.3.15 設備和風管的絕熱材料、用于加濕器的加濕材料、消聲材料及其粘結劑,宜采用不燃材料,確有困難時,可采用難燃材料。
風管內設置電加熱器時,電加熱器的開關應與風機的啟停聯鎖控制。電加熱器前后各0.8m范圍內的風管和穿過有高溫、火源等容易起火房間的風管,均應采用不燃材料。
9.3.16 燃油或燃氣鍋爐房應設置自然通風或機械通風設施。燃氣鍋爐房應選用防爆型的事故排風機。當采取機械通風時,機械通風設施應設置導除靜電的接地裝置,通風量應符合下列規定:
1 燃油鍋爐房的正常通風量應按換氣次數不少于3次/h確定,事故排風量應按換氣次數不少于6次/h確定;
2 燃氣鍋爐房的正常通風量應按換氣次數不少于6次/h確定,事故排風量應按換氣次數不少于12次/h確定。
條文說明
9.3 通風和空氣調節
9.3.1 由于火災中的熱煙氣擴散速度較快,在布置通風和空氣調節系統的管道時,要采取措施阻止火災的橫向蔓延,防止和控制火災的豎向蔓延,使建筑的防火體系完整。本條結合工程設計實際和建筑布置需要,規定通風和空氣調節系統的布置,橫向盡量按每個防火分區設置,豎向一般不大于5層。通風管道在穿越防火分隔處設置防火閥,可以有效地控制火災蔓延,在此條件下,通風管道橫向或豎向均可以不分區或按樓層分段布置。在住宅建筑中的廚房、廁所的垂直排風管道上,多見用防止回流設施防止火勢蔓延,在公共建筑的衛生間和多個排風系統的排風機房里需同時設防火閥和防止回流設施。
本規范要求建筑內管道井的井壁應采用耐火極限不低于1.00h的防火隔墻,故穿過樓層的豎向風管也要求設在管井內或者采用耐火極限不低于1.00h的耐火管道。
住宅建筑中的排風管道內采取的防止回流方法,可參見圖8所示的做法。具體做法有:

(2) 把排風豎管分成大小兩個管道,豎向干管直通屋面,排風支管分層與豎向干管連通;
(3) 將排風支管順氣流方向插入豎向風道,且支管到支管出口的高度不小于600mm;
(4) 在支管上安裝止回閥。
9.3.2 本條為強制性條文。對于有爆炸危險的車間或廠房,容易通過通風管道蔓延到建筑的其它部分,本條對排風管道穿越防火墻和有爆炸危險的部位作了嚴格限制,以保證防火墻等防火分隔物的完整性,并防止通過排風管道將有爆炸危險場所的火災或爆炸波引入其他場所。
9.3.3 在火災危險性較大的甲、乙、丙類廠房內,送排風管要盡量考慮分層設置。當進入生產車間或廠房的水平或垂直風管設置了防火閥時,可以阻止火災從著火層向相鄰層蔓延,因而各層的水平或垂直送風管可以共用一個系統。
9.3.4 在風機停機時,一般會出現空氣從風管倒流到風機的現象。當空氣中含有易燃或易爆炸物質且風機未做防爆處理時,這些物質會隨之被帶到風機內,并因風機產生的火花而引起爆炸,故風機要采取防爆措施。一般,可采用有色金屬制造的風機葉片和防爆的電動機。
若通風機設置在單獨隔開的通風機房內,在送風干管內設置止回閥,即順氣流方向開啟的單向閥,能防止危險物質倒流到風機內,且通風機房發生火災后也不致蔓延至其它房間,因此可采用普通的通風設備。
9.3.5 本條為強制性條文。含有燃燒和爆炸危險粉塵的空氣不能進入排風機或在進入排風機前對其進行凈化。采用不產生火花的除塵器,主要為防止除塵器工作過程中產生火花引起粉塵、碎屑燃燒或爆炸。
空氣中可燃粉塵的含量控制在25%以下,通常是可防止可燃粉塵形成局部高濃度、滿足安全要求的數值。美國消防協會(NFPA)《防火手冊》指出:可燃蒸氣和氣體的警告響應濃度為其爆炸下限的20%;當濃度達到爆炸下限的50%時,要停止操作并進行惰化。國內大部分文獻和標準也均采用物質爆炸下限的25%為警告值。
9.3.6 根據火災爆炸案例,有爆炸危險粉塵的排風機、除塵器采取分區、分組布置是必要的。一個系統對應一種粉塵,便于粉塵回收;不同性質的粉塵在一個系統中,有引起化學反應的可能。如硫磺與過氧化鉛、氯酸鹽混合物能發生爆炸,碳黑混入氧化劑自燃點會降低到100℃。因此,本條強調在布置除塵器和排風機時,要盡量按單一粉塵分組布置。
9.3.7 從國內一些用于凈化有爆炸危險粉塵的干式除塵器和過濾器發生爆炸的危害情況看,這些設備如果條件允許布置在廠房之外的獨立建筑內,并與所屬廠房保持一定的防火間距,對于防止發生爆炸和減少爆炸危害十分有利。
9.3.8 本條為強制性條文。試驗和爆炸案例分析均表明,用于排除有爆炸危險的粉塵、碎屑的除塵器、過濾器和管道,如果設置泄壓裝置,對于減輕爆炸的沖擊波破壞較為有效。泄壓面積大小則需根據有爆炸危險的粉塵、纖維的危險程度,經計算確定。
要求除塵器和過濾器布置在負壓段上,主要為縮短含塵管道的長度,減少管道內的積塵,避免因干式除塵器布置在系統的正壓段上漏風而引起火災。
9.3.9 本條為強制性條文。含可燃氣體、蒸氣和粉塵場所的排風系統,通過設置導除靜電接地的裝置,可以減少因靜電引發爆炸的可能性。地下、半地下場所易積聚有爆炸危險的蒸氣和粉塵等物質,因此對上述場所進行排風的設備不能設置在地下、半地下。
本條第3款規定主要為便于檢查維修和排除危險,消除安全隱患。為安全考慮,排氣口要盡量遠離明火和人員通過或停留的地方。
9.3.10 溫度超過80℃的氣體管道與可燃或難燃物體長期接觸,易引起火災;容易起火的碎屑也可能在管道內發生火災,并易引燃鄰近的可燃、難燃物體。因此,要求與可燃、難燃物體之間保持一定間隙或應用導熱性差的不燃隔熱材料進行隔熱。
9.3.11 本條為強制性條文。通風和空氣調節系統的風管是建筑內部火災蔓延的途徑之一,要采取措施防止火勢穿過防火墻和不燃性防火分隔物等位置蔓延。通風、空氣調節系統的風管上應設防火閥的部位主要有:
1 防火分區等防火分隔處。主要防止火災在防火分區或不同防火單元之間蔓延。在某些情況下,必須穿過防火墻或防火隔墻時,需在穿越處設置防火閥,此防火閥一般依靠感煙火災探測器控制動作,用電訊號通過電磁鐵等裝置關閉,同時它還具有溫度熔斷器自動關閉以及手動關閉的功能。
2、3 風管穿越通風、空氣調節機房或其他防火隔墻和樓板處。主要防止機房的火災通過風管蔓延到建筑內的其他房間,或者防止建筑內的火災通過風管蔓延到機房。此外,為防止火災蔓延至重要的會議室、貴賓休息室、多功能廳等性質重要的房間或有貴重物品、設備的房間以及易燃物品實驗室或易燃物品庫房等火災危險性大的房間,規定風管穿越這些房間的隔墻和樓板處應設置防火閥。
4 在穿越變形縫的兩側風管上。在該部位兩側風管上各設一個防火閥,主要為使防火閥在一定時間里達到耐火完整性和耐火穩定性要求,有效地起到隔煙阻火作用,參見圖9。

有關防火閥的分類,參見表18。

由于廚房中平時操作排出的廢氣溫度較高,若在垂直排風管上設置70℃時動作的防火閥,將會影響平時廚房操作中的排風。根據廚房操作需要和廚房常見火災發生時的溫度,本條規定公共建筑廚房的排油煙管道的支管與垂直排風管連接處要設150℃時動作的防火閥,同時,排油煙管道盡量按防火分區設置。
9.3.13 本條規定了防火閥的主要性能和具體設置要求。
(1) 為使防火閥能自行嚴密關閉,防火閥關閉的方向應與通風和空調的管道內氣流方向相一致。采用感溫元件控制的防火閥,其動作溫度高于通風系統在正常工作的最高溫度(45℃)時,宜取70℃。現行國家標準《建筑通風和排煙系統用防火閥門》GB 15930規定防火閥的公稱動作溫度應為70℃。
(2) 為使防火閥能及時關閉,控制防火閥關閉的易熔片或其它感溫元件應設在容易感溫的部位。設置防火閥的通風管要求具備一定強度,設置防火閥處要設置單獨的支吊架,以防止管段變形。在暗裝時,需在安裝部位設置方便檢修的檢修口,參見圖10。

9.3.14 國內外均有不少因通風、空調系統風管因可燃而致火災蔓延,造成重大的人員和財產損失的案例,故本條規定通風、空調系統的風管應采用不燃材料制作。
本條規定參考了國外有關標準,考慮了我國有關防火分隔的具體要求及應用實例,如一些大空間民用或工業生產場所。設計要注意控制材料的燃燒性能及其發煙性能和熱解產物的毒性。
9.3.15 加濕器的加濕材料常為可燃材料,這給類似設備留下了一定火災隱患。因此,風管和設備的絕熱材料、用于加濕器的加濕材料、消聲材料及其粘結劑,應采用不燃材料。在采用不燃材料確有困難時,允許有條件地采用難燃材料。
為防止通風機已停而電加熱器繼續加熱引起過熱而著火,電加熱器的開關與風機的開關應進行聯鎖,風機停止運轉,電加熱器的電源亦應自動切斷。同時,電加熱器前后各800mm的風管采用不燃材料進行絕熱,穿過有火源及容易著火的房間的風管也應采用不燃絕熱材料。
目前,不燃絕熱材料、消聲材料有超細玻璃棉、玻璃纖維、巖棉、礦渣棉等。難燃材料有自熄性聚氨脂泡沫塑料、自熄性聚苯乙烯泡沫塑料等。
9.3.16 本條為強制性條文。本條所指鍋爐房包括燃油、燃氣的熱水、蒸汽鍋爐房和直燃型溴化鋰冷(熱)水機組的機房。
燃油、燃氣鍋爐房在使用過程中存在逸漏或揮發的可燃性氣體,要在這些房間內通過自然通風或機械通風方式保持良好的通風條件,使逸漏或揮發的可燃性氣體與空氣混合氣體的濃度不能達到其爆炸下限值的25%。
燃油鍋爐所用油的閃點溫度一般高于60℃,油泵房內的溫度一般不會高于60℃,不存在爆炸危險。機房的通風量可按泄漏量計算或按換氣次數計算,具體設計要求參見現行國家標準《鍋爐房設計規范》GB 50041-2008第15.3節有關燃油、燃氣鍋爐房的通風要求。智淼君安(江蘇)消防工程技術有限公司http://m.yemaihua.cn/
海灣消防公司主營:海灣消防報警系統銷售,消防設備安裝,海灣氣體滅火、海灣電氣火災、消防水噴淋系統施工安裝,售后維修,海灣消防網站:http://m.yemaihua.cn/;海灣消防服務熱線:4006-598-119
本頁關鍵詞:海灣消防公司-建筑通風和空氣調節
上一篇:海灣消防-建筑供暖 下一篇:海灣消防-建筑消防電源及其配電
技術資料更多 >>


蘇公網安備32058102002147號